Gecertificeerde makelaar
Nederlandse begeleiding in Spanje
Lokale kennis
Inloggen
Header

Woningen

Villa in el Pinar de l'Advocat
Villa in el Pinar de l'Advocat
Villa in el Pinar de l'Advocat
Villa in el Pinar de l'Advocat
Villa in el Pinar de l'Advocat
Villa in el Pinar de l'Advocat
Villa in el Pinar de l'Advocat
Villa in el Pinar de l'Advocat

Villa in el Pinar de l'Advocat

N6425

Nieuwbouw

€ 1.795.000,-

Meter

Woonoppervlakte

300 m²

Bed

Aantal slaapkamers

4

Shower

Aantal badkamers

4

Water Ladder

Met zwembad

Ja

Omschrijving

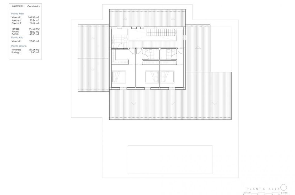
Nieuw gebouwde villa in Teulada met uitzicht op de bergen

Op de begane grond vinden we een grote woon-eetkamer en open keuken, master bedroom met walking wardrobe en badkamer, terras aan de voorzijde met toegang tot het zwembad.

Op de eerste verdieping is 3 slaapkamers met inbouwkasten, 3 badkamers en suite.

Ook hier is er een kelder van 81m2 met wijnkelder.

De villa zal worden gebouwd met materialen van hoge kwaliteit.

De keuken zal worden gekozen door de klant, keukenkasten, werkblad en apparatuur.

Airconditioning met klimaatbeheersingssysteem (condense) in de woonkamers en slaapkamers.
Mitsubishi merk.

Het zwembad zal worden gebouwd met een buiten
douche (warm/koud water aansluiting).

Automatische toegangspoort voor de auto's met afstandsbediening en automatische voetgangersdeur.

Tuin naar keuze van de klant.

Moraira is een kleine stad met goede restaurants, bars en tal van supermarkten in de buurt.

Er is een zeer aangenaam strand direct naast de stad dat zeer geschikt is voor gezinnen.

De boulevard biedt een geweldig uitzicht op Penon Ifach aan de overkant van de baai in Calpe. De kustweg erheen is zeker de moeite waard met een aantal spectaculaire uitzichten.

Moraira ligt ongeveer 1 uur 15 minuten ten noorden van de A7 vanaf de luchthaven van Alicante en is dus vrij gemakkelijk te bereiken. Het is ongeveer dezelfde afstand of iets minder naar het zuiden vanaf de luchthaven van Valencia.

Lees meer

Kenmerken

Overdracht

Status Beschikbaar
Vraagprijs € 1.795.000,-
Referentie N6425

Indeling

Woonoppervlakte 300 m²
Perceeloppervlakte 346 m²

Bouwvorm

Soort woning Villa
Aantal slaapkamers 4
Aantal badkamers 4
Met zwembad Ja

Locatie

Provincie Alicante
Plaats el Pinar de l'Advocat

Overige kenmerken

nieuwbouw

tuin

gated complex

solarium


Locatie

Neem contact met ons op